Hiroshi Nakamura diseñó en Hiroshima, Japón una casa de cristal óptico
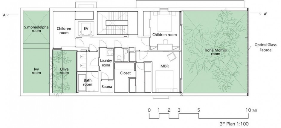
Esta vivienda se sitúa en el centro de Hiroshima, en una calle por dónde pasan muchos coches y tranvías, además está diseñada con un jardín exterior a la que dá todas las habitaciones de la vivienda y para obtener una privacidad hacia la calle se realizó una fachada de vidrio óptico. Así desde la casa se puede disfrutar del jardín y la calle a su vez como de la luz que se filtra del exterior.
Su fachada cuenta con unos 6.000 bloques de vidrio puro de dimensiones de 50mmx235mmx50mm), aislando la vivienda del ruido exterior.
Vía:Contemporist


















La verdad es que queda muy vistoso, ilumina, decora... Es precioso!!!!
ResponderEliminarBuen Lunes
Qué curioso. Lo que más me llama la atención es el montaje.
ResponderEliminarMe encanta la paz que transmite. El jardin es una pasada. Bss.
ResponderEliminarhttp://solaanteelespejo.blogspot.com.es/
Jardín increible, y la realizacion de los bloques bestial.!!!!!!
ResponderEliminarFelicidades como siempre . El Jardinero Fiel
Qué preciosidad de casa! Eso si... enorme!!
ResponderEliminarA mi lo de las pareces de crista, por bonito que sea, nunca me ha convencido demasiado, pero estas al ser especials, que parece que no te ven pero deja entrar toda la claridad, está genial.
Un besín!